1. Tổng quan dự án
Tên chính thức của dự án: Hội An Royal Residence
Tổng diện tích quy hoạch: 6,1 ha
Sản phẩm: đất nền biệt thự, đất nền nhà ở, nhà phố thương mại…
Chủ đầu tư: Công ty cổ phần tập đoàn Hoàng Gia Hội An
Tổng diện tích: 61.662m2
Quy mô: Gồm biệt thự nghỉ dưỡng, nhà phố thương mại, Condotel, chia làm 3 khu phố:
+ Khu phố An Bàng - An Bàng Block (tên làng chài ở bãi tắm An Bàng)
+ Khu phố Cửa Đại - Cửa Đại Block (tên một bãi tắm của Hội An)
+ Khu phố Trà Quế - Trà Quế Block (tên làng rau nổi tiếng đối diện bên kia sông)
Diện tích phân lô: 10 x 16 = 160 m2; 12,5 x 20 = 250 m2; 7,5 x 30 = 225 m2; 14 x 25 = 350m2; 8 x 25 = 200 m2
Đường: 5,5m; 7,5m; 11,5m
Pháp lý rõ ràng: quy hoạch 1/500, sổ đỏ từng lô, sở hữu lâu dài
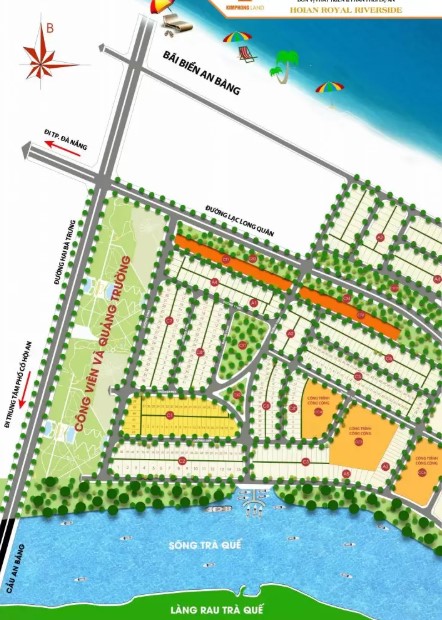
2. Vị trí
Dự án Hội An Royal Residence sở hữu vị trí đắc địa ngay cửa ngõ đi vào Hội An, cách bãi tắm An Bàng nổi tiếng chừng 3 phút đi bộ, Hoi An Royal Residences hứa hẹn sẽ thay đổi một phần bộ mặt đô thị nơi đây.
Tiếp cận dự án Hội An Royal Residence:
+ Phía Bắc Royal Hội An: Tiếp giáp với khu dân cư hiện hữu và đường Du lịch ven biển.
+ Phía Nam Royal Hội An: Tiếp giáp với sông Cổ Cò và một phần view sang Làng rau Trà Quế.
+ Phía Đông Royal Hội An: Tiếp giáp với khu nghỉ dưỡng dự kiến.
+ Phía Tây Royal Hội An: Tiếp giáp với khu vực quảng trường dự kiến và đường Hai Bà Trưng.
3.Tiện ích nội khu
Hội An Royal Residence với tổng mức đầu tư khoảng 1.000 tỷ đồng, đây là khu phức hợp theo tiêu chuẩn quốc tế, bao gồm nhiều công năng, loại hình biệt thự thương mại, biệt thự du lịch, biệt thự nghỉ dưỡng và căn hộ Condotel (căn hộ khách sạn). Công viên, TTTM, nhà hàng, cafe.
Bến du thuyền & quảng trường trung tâm
Khu vui chơi – giải trí ngoài trời & tập dưỡng sinh
Trung tâm thương mại