1. Tổng quan dự án
Tên Dự Án: FLC Premier Parc.
Chủ Đầu Tư : FLC Group.
Vị Trí Dự Án : Nằm trên 2 trục đường lớn Lê Quang Đạo và Đường 70 .
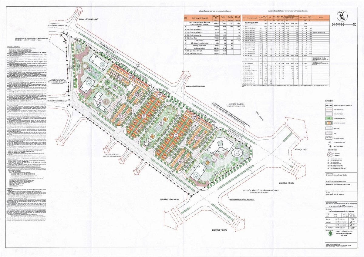
Tổng Diện Tích Dự Án : 64.077 m2
Mật Độ Xây Dựng : 35 %
Loại Hình Dự Án : Shophouse Villa . Liền kề . Biệt Thự Song Lập .
Quy Mô Dự Án : Bao Gồm 91 Lô Liền kề , 54 Lô Biệt Thự
Diện Tích Khu Liền Kề : 8.968m2
Diện Tích Khu Biệt Thự : 6.533 m2
2. Vị trí
Tọa lạc tại vị trí ngay nút giao Đường Quốc Lộ 70 và Đường Lê Quang Đạo kéo dài.
Vị trí giao thông vô cùng thuận tiện.
Phía Bắc : Giáp khu trung tâm thương mại mới Quận Hà Đông
Phía Tây : Giáp chung cư cán bộ chiến sỹ B32 Đại Mỗ . KĐT FLC Garden City và Aeon Mall Hà Đông
Gần các khu đô thị lớn như: Park City, FLC Garden City, Vinhomes Thăng Long, Louis City ,KĐT Thiên Đường Bảo Sơn……
3. Tiện ích nội khu
Trung tâm thương mại
Khu vui chơi giải trí, chăm sóc sức khỏe, khu vui chơi trẻ em trong khuôn viên FLC PREMIER PARC.
Bể bơi bốn mùa, bể bơi ngoài trời
Đường chạy bộ xung quanh dự án Vườn Ngọc Lan
Khu thể thao và sinh hoạt cộng đồng.
Các trường học theo tiêu chuẩn quốc tế đủ các cấp học, đảm bảo một môi trường sống văn minh và chất lượng cho cư dân.
Tại FLC PREMIER PARC, các cư dân đều có thể tận hưởng một không gian xanh mát, thong thả nướng BBQ như đang nghỉ dưỡng tại resort mỗi ngày.
An ninh tại FLC PREMIER PARC luôn được đảm bảo với camera 24/24, bảo vệ, hệ thống phòng cháy chữa cháy.