(1) Tổng quan Hưng Vượng 2
Hưng Vượng 2 là một trong những dự án căn hộ đầu tiên thuộc Khu đô thị mới Phú Mỹ Hưng, do Công ty TNHH Liên doanh Phú Mỹ Hưng làm chủ đầu tư. Dự án được triển khai từ năm 2000 và chính thức bàn giao vào tháng 9/2002.
Dự án được xây dựng trên khu đất rộng 4.477,40 m², với 16 tòa nhà cao từ 6 – 9 tầng, cung cấp ra thị trường 516 căn hộ với diện tích đa dạng từ 68 – 200 m². Các căn hộ tại đây có pháp lý minh bạch, sổ hồng lâu dài cho người Việt Nam và thời hạn sở hữu 50 năm cho người nước ngoài.
Thông tin tổng quan:
Tên dự án: Hưng Vượng 2
Vị trí: R13 Đường số 6, Phường Tân Phong, Quận 7, TP. Hồ Chí Minh
Chủ đầu tư: Công ty TNHH Liên doanh Phú Mỹ Hưng
Diện tích đất: 4.477,40 m²
Quy mô: 16 block, cao 6 – 9 tầng
Số lượng căn hộ: 516 căn
Loại hình: Căn hộ cao cấp
Pháp lý: Sổ hồng lâu dài (người Việt), 50 năm (người nước ngoài)
(2) Vị trí Hưng Vượng 2
Căn hộ Hưng Vượng 2 tọa lạc tại R13 Đường số 6, Phường Tân Phong, Quận 7, ngay mặt tiền đường rộng 22m, phía sau chung cư Hưng Vượng 1. Vị trí này nằm ngay trung tâm khu đô thị Phú Mỹ Hưng, một trong những khu vực phát triển bậc nhất tại TP.HCM.
Dự án được bao quanh bởi khu phố kinh doanh, ẩm thực sầm uất, nhiều cửa hàng, nhà hàng, quán café, spa và trung tâm dịch vụ. Ngoài ra, cư dân Hưng Vượng 2 còn thừa hưởng hệ thống tiện ích ngoại khu đa dạng:
Gần các trường học quốc tế, bệnh viện hiện đại, siêu thị lớn
Kết nối trực tiếp với trục đường Nguyễn Văn Linh
Dễ dàng di chuyển đến Quận 1, Quận 4, Quận 8, Nhà Bè và Bình Chánh
Với lợi thế này, Hưng Vượng 2 không chỉ mang lại không gian sống tiện nghi mà còn có tiềm năng gia tăng giá trị trong tương lai.
(3) Tiện ích Hưng Vượng 2
Tiện ích nội khu
Hưng Vượng 2 được quy hoạch đồng bộ, đáp ứng đầy đủ nhu cầu sinh hoạt và giải trí của cư dân:
Công viên rộng rãi, không gian xanh thoáng mát
Tầng trệt bố trí khu vực để xe thuận tiện
Hệ thống an ninh, bảo vệ 24/7
Hệ thống điện, nước, internet bố trí thông minh và an toàn
Phòng cháy chữa cháy đạt chuẩn quốc gia
Tiện ích ngoại khu
Nhờ vị trí trong khu đô thị Phú Mỹ Hưng, cư dân Hưng Vượng 2 dễ dàng tiếp cận:
Siêu thị, trung tâm thương mại hiện đại
Hệ thống trường học các cấp, trường quốc tế
Bệnh viện FV, bệnh viện tim Tâm Đức
Công viên, khu vui chơi giải trí, sân golf
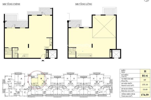
(4) Mặt bằng Hưng Vượng 2
Tổng thể dự án gồm 16 block nhà ký hiệu A, B, C, D, E, F, G, H, I, J, K, L, M, N, O, P.
Mỗi block được bố trí 1 thang máy và 1 thang bộ.
Các tòa nhà cao từ 6 – 9 tầng, với thiết kế căn hộ từ 2 – 4 phòng ngủ, diện tích đa dạng từ 68 – 200 m².
Bên trong căn hộ, không gian được thiết kế thoáng mát, tiện nghi, phù hợp cho nhiều nhu cầu sinh sống.
Các căn hộ tại Hưng Vượng 2 đều hướng đến sự hiện đại, an toàn và tiết kiệm chi phí, tạo nên một cộng đồng dân cư văn minh, ổn định lâu dài tại trung tâm Phú Mỹ Hưng – Quận 7.