1. Tổng quan dự án
- Tên dự án: Happy Home Tràng Cát (Nhà ở xã hội Tràng Cát – Giai đoạn 1)
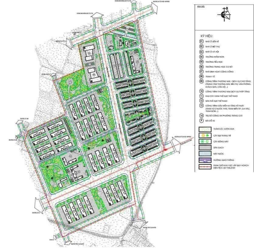
- Diện tích quy hoạch: 28,14 ha
- Chủ đầu tư: Tập đoàn Vingroup (Công ty Cổ phần Vinhomes)
- Chung cư gồm 27 tòa nhà cao từ 7 – 9 tầng
- Tổng số 3.804 căn hộ chung cư
- Nhà ở thấp tầng: 284 căn liền kề và 63 căn shophouse thương mại dịch vụ
- Được khởi công vào ngày 06/01/2024
- Dự kiến hoàn thành trong vòng 5 năm
2. Vị trí
- Vị trí: Phường Tràng Cát, quận Hải An, TP. Hải Phòng
- Thuộc khu vực: Khu kinh tế Đình Vũ – Cát Hải
- Cách KCN Tràng Duệ: ~150 m
- Cách chợ Tràng Duệ: ~1,2 km
- Cách trường tiểu học, THCS & UBND xã Lê Lợi: ~2 km
- Cách TP Uông Bí: ~20 km
3. Tiện ích nội khu
- Không gian cảnh quan cây xanh, vườn hoa
- Hệ thống tiện ích ngoài trời:
+ Sân thể thao
+ Sân chơi trẻ em
+ Khu tập gym ngoài trời
- Các công trình công cộng & hạ tầng xã hội:
+ Trường học nội khu
+ Trạm y tế
+ Khu thương mại – dịch vụ
+ Các công trình công cộng khác phục vụ cư dân