Bản đồ quy hoạch mặt bằng dự án The Global City chi tiết ra sao?
Mua bán Căn hộ chung cư tại Thành phố Thủ Đức
Nội dung chính
Bản đồ quy hoạch mặt bằng dự án The Global City chi tiết ra sao?
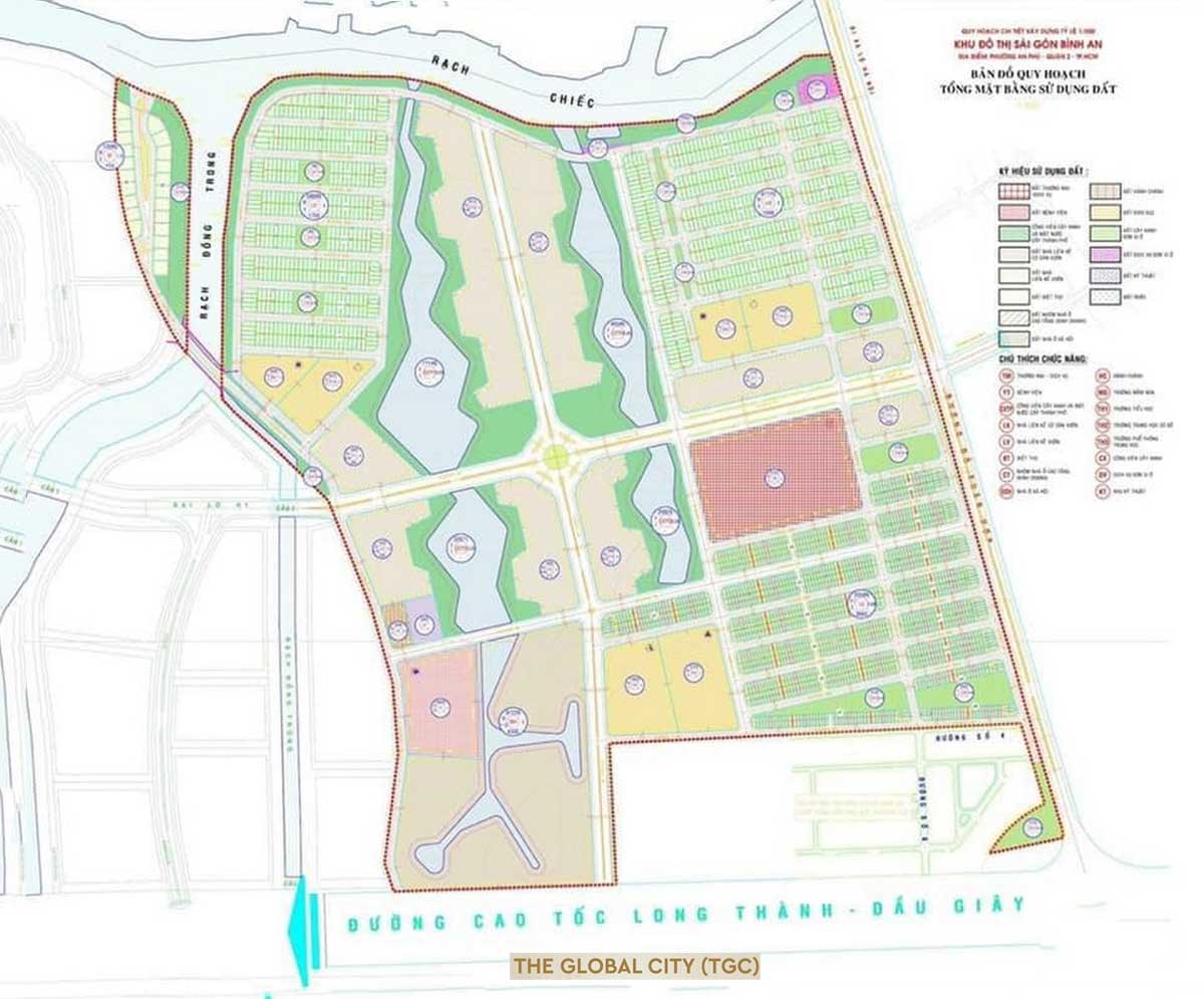
Dự án The Global City được quy hoạch trên khu đất rộng 117,4ha tại phường An Phú, TP. Thủ Đức, TP. Hồ Chí Minh. Dự án được chia thành 6 phân khu chính với các loại hình sản phẩm đa dạng như:
* Phân khu 1 – Khu nhà phố thương mại cao cấp
Phân khu 1 có quy mô 18,4 ha, bao gồm 444 căn nhà phố với diện tích từ 100m² – 150m², mật độ xây dựng 38%. Đây là khu vực được định hướng trở thành trục phố thương mại sầm uất, với không gian mở, vỉa hè rộng, thuận tiện cho kinh doanh, dịch vụ, ẩm thực và thời trang.
* Phân khu 2 – Khu nhà phố liền kề hiện đại
Phân khu 2 rộng 16,4 ha, phát triển 487 căn nhà phố diện tích từ 100m² – 150m², mật độ xây dựng 36%. Quy hoạch chú trọng không gian xanh, đường nội khu thông thoáng, xen kẽ các công viên nhỏ, tạo môi trường sống thân thiện và cân bằng giữa sinh hoạt – thương mại.
* Phân khu 3 – Khu biệt thự và nhà phố ven kênh
Phân khu 3 có diện tích 14,3 ha, bao gồm 426 căn nhà phố và 22 căn biệt thự cao cấp với diện tích từ 150m² – 300m², mật độ xây dựng chỉ 30%. Đây là khu vực có vị trí đẹp, nằm gần trục cảnh quan sông – kênh đào, được thiết kế theo phong cách nghỉ dưỡng với không gian xanh và tầm nhìn thoáng đãng.
* Phân khu 4 – Khu căn hộ cao tầng hiện đại (giai đoạn 1)
Phân khu 4 chiếm diện tích 22,8 ha, gồm 4 tòa tháp căn hộ cao từ 35 – 40 tầng, mật độ xây dựng 30%. Khu vực này được quy hoạch theo hướng đô thị hiện đại, tích hợp các tiện ích nội khu như hồ bơi, công viên trung tâm, khu thể thao và dịch vụ cộng đồng.
* Phân khu 5 – Khu căn hộ cao tầng (giai đoạn 2)
Tương tự phân khu 4, phân khu 5 có diện tích 22,8 ha, bao gồm 4 tòa tháp cao 35 – 40 tầng, mật độ xây dựng 30%. Khu vực này nối liền đại lộ trung tâm, kết nối trực tiếp với khu thương mại và các tuyến đường chính, tạo thành khu phức hợp nhà ở – dịch vụ quy mô lớn.
* Phân khu 6 – Trung tâm thương mại, văn phòng và tiện ích tổng hợp
Phân khu 6 rộng 22,7 ha, là trái tim của toàn dự án với các chức năng chính gồm: trung tâm thương mại, khu văn phòng, khu vui chơi giải trí, trường học, y tế và dịch vụ công cộng, mật độ xây dựng 40%. Đây là khu vực sôi động nhất, đóng vai trò trung tâm kết nối toàn bộ dự án, đồng thời là điểm nhấn kiến trúc mang tính biểu tượng của The Global City.
Dưới đây là bản đồ quy hoạch mặt bằng dự án The Global City

Giới thiệu tổng quan về dự án The Global City
Dưới đây là bảng giới thiệu tổng quan về dự án The Global City
| Hạng mục | Nội dung chi tiết |
|---|---|
| Tên dự án | THE GLOBAL CITY |
| Vị trí | Đường Đỗ Xuân Hợp, phường An Phú, TP. Thủ Đức, TP.HCM |
| Chủ đầu tư | Masterise Homes |
| Đơn vị tư vấn thiết kế kiến trúc | Foster + Partners (Anh Quốc) |
| Đơn vị thiết kế cảnh quan | WATG (Mỹ) |
| Đơn vị thầu xây dựng | An Phong Construction |
| Loại hình phát triển | Căn hộ cao cấp, Nhà phố, Shophouse, Biệt thự (Villas), Bệnh viện, Trường học, Công viên, Trung tâm thương mại, Khu vui chơi giải trí, Spa, Nhà hàng, Coffee shop,… |
| Tổng quy mô | 117,4 ha, chia thành 2 khu vực chính: – Khu thấp tầng: 1.800 căn nhà phố (đợt 1 ra mắt 100 căn), chia làm 18 đợt mở bán, giá điều chỉnh tăng dần. Gồm 4 khu nhà phố & villa, thiết kế khác nhau nhưng tổng thể hài hòa. – Khu cao tầng: khoảng 10.000 căn hộ cao cấp, bàn giao full nội thất. |
| Phân khu tiêu biểu | Phân khu 1 – 3: Nhà phố, biệt thự; Phân khu 4 – 5: Căn hộ cao tầng; Phân khu 6: Trung tâm thương mại, văn phòng, trường học và khu vui chơi giải trí. |
| Diện tích nhà phố | Từ 100m² – 150m² (biệt thự từ 150m² – 300m²) |
| Hình thức bàn giao | – Bên ngoài: Hoàn thiện đồng bộ theo thiết kế – Bên trong: Xây thô, 4 tầng, có sẵn vị trí thang máy |
| Thiết kế kiến trúc | Mặt ngoài ứng dụng công nghệ năng lượng mặt trời, giúp giảm nhiệt nhưng vẫn đón nắng và gió tự nhiên. Mỗi căn có thiết kế riêng biệt, phong cách Luxury Lifestyle, view thoáng rộng. |
| Hình thức sở hữu | – Người Việt Nam: Sở hữu lâu dài – Người nước ngoài: Sở hữu 50 năm theo quy định |
| Định hướng phát triển | Trở thành “Downtown mới” của TP.HCM, biểu tượng của đô thị hiện đại, năng động và xanh, hội tụ trọn vẹn các chức năng sống – làm việc – mua sắm – giải trí. |
Dưới đây là một số tin rao mua bán căn hộ tại dự án The Global City
(1) Bán căn hộ The Global City ngay công viên nhạc nước, giá cực kỳ ưu đãi, chiết khấu 15%
- Diện tích: 3.12 ha, dự kiến ~1.700 sản phẩm
- Gồm 04 tòa: Toà A1, A2 cao 24 tầng; Toà B1, B2 cao 27 tầng, 3 tầng khối đế
>>> Xem chi tiết tin rao: TẠI ĐÂY
(2) Bán căn hộ CT5 The Global City ngay công viên nhạc nước lớn nhất Đông Nam Á, ưu đãi hấp dẫn
- Quy mô: 3,12ha với khoảng 1.600 căn hộ
- 4 tòa căn hộ cao cấp cao 30 tầng: 4 tầng khối đế thương mại, căn hộ từ tầng 5.
- 1 tháp văn phòng hạng A cao 30 tầng.
>>> Xem chi tiết tin rao: TẠI ĐÂY
(3) Bán shophouse 95m2 tại The Global City, An Phú, Quận 2, giá tốt
- Vị trí: Dự án The Global City, Phường An Phú, Quận 2, TP. Hồ Chí Minh.
- Diện tích: 95m2 (ngang 5m, dài 19m), thiết kế 5 tầng hiện đại.
>>> Xem chi tiết tin rao: TẠI ĐÂY
Xem thêm tin rao mua bán căn hộ dự án The Global City: TẠI ĐÂY

Bản đồ quy hoạch mặt bằng dự án The Global City chi tiết ra sao? (Hình từ Internet)
Nội dung quy hoạch tổng mặt bằng gồm những gì?
Căn cứ tại khoản 4 Điều 10 Nghị định 178/2025/NĐ-CP quy định quy hoạch tổng mặt bằng như sau:
Điều 10. Quy hoạch tổng mặt bằng
[...]
4. Nội dung quy hoạch tổng mặt bằng:
a) Xác định yêu cầu về tổ chức không gian, kiến trúc cảnh quan, hạ tầng kỹ thuật đối với lô đất trên cơ sở phù hợp với quy hoạch phân khu hoặc quy hoạch chung đã được phê duyệt đối với trường hợp không quy định lập quy hoạch phân khu; các chỉ tiêu kinh tế - kỹ thuật, chỉ tiêu sử dụng đất quy hoạch phù hợp với quy chuẩn về quy hoạch đô thị và nông thôn và phù hợp với quy chuẩn, tiêu chuẩn chuyên ngành đối với dự án đầu tư xây dựng nhà máy, xí nghiệp, cơ sở sản xuất công nghiệp, công trình hạ tầng kỹ thuật;
b) Thể hiện vị trí quy mô công trình, hạng mục công trình trong lô đất; dự kiến hình thức kiến trúc công trình phù hợp với không gian kiến trúc cảnh quan khu vực xung quanh; phương án thiết kế hạ tầng kỹ thuật bảo đảm đấu nối đồng bộ với hệ thống hạ tầng của khu vực và phù hợp về không gian kiến trúc với khu vực xung quanh;
c) Bộ trưởng Bộ Xây dựng hướng dẫn về hồ sơ quy hoạch tổng mặt bằng.
[...]
Như vậy, nội dung quy hoạch tổng mặt bằng bao gồm:
- Xác định yêu cầu về tổ chức không gian, kiến trúc cảnh quan, hạ tầng kỹ thuật đối với lô đất trên cơ sở phù hợp với quy hoạch phân khu hoặc quy hoạch chung đã được phê duyệt đối với trường hợp không quy định lập quy hoạch phân khu; các chỉ tiêu kinh tế - kỹ thuật, chỉ tiêu sử dụng đất quy hoạch phù hợp với quy chuẩn về quy hoạch đô thị và nông thôn và phù hợp với quy chuẩn, tiêu chuẩn chuyên ngành đối với dự án đầu tư xây dựng nhà máy, xí nghiệp, cơ sở sản xuất công nghiệp, công trình hạ tầng kỹ thuật;
- Thể hiện vị trí quy mô công trình, hạng mục công trình trong lô đất; dự kiến hình thức kiến trúc công trình phù hợp với không gian kiến trúc cảnh quan khu vực xung quanh; phương án thiết kế hạ tầng kỹ thuật bảo đảm đấu nối đồng bộ với hệ thống hạ tầng của khu vực và phù hợp về không gian kiến trúc với khu vực xung quanh;
- Bộ trưởng Bộ Xây dựng hướng dẫn về hồ sơ quy hoạch tổng mặt bằng.
