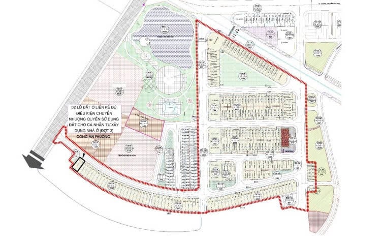
Bản đồ vị trí 02 lô đất ở đã có hạ tầng kỹ thuật thuộc dự án Khu đô thị bản Buổn tỉnh Sơn La (đợt 3)
Mua bán nhà đất tại Sơn La
Nội dung chính
Bản đồ vị trí 02 lô đất ở đã có hạ tầng kỹ thuật thuộc dự án Khu đô thị bản Buổn tỉnh Sơn La
Tại Công văn 4132/SXD-QHKT&PTĐT năm 2025 về việc thông báo 02 lô đất ở đã có hạ tầng kỹ thuật thuộc dự án Khu đô thị bản Buổn, bản Mé, phường Chiềng Cơi, thành phố Sơn La, tỉnh Sơn La (nay thuộc phường Chiềng Cơi, tỉnh Sơn La) đủ điều kiện được chuyển nhượng cho cá nhân tự xây dựng nhà ở (đợt 3).
Tên dự án: Khu đô thị bản Buổn, Bản Mé, phường Chiềng Cơi, thành phố Sơn La, tỉnh Sơn La (viết tắt là Dự án).
Địa điểm xây dựng: Phường Chiềng Cơi, thành phố Sơn La, tỉnh Sơn La (nay thuộc phường Chiềng Cơi, tỉnh Sơn La).
Chủ đầu tư: Liên danh Công ty TNHH xây dựng thương mại Kim Sơn và Công ty cổ phần đầu tư và xây dựng Tuấn Cường.
Diện tích sử dụng đất: 47.426 m².
Số lô đất ở, nhà ở xây thô: Tổng số lô đất ở là 222 lô; trong đó có 176 lô đất ở liền kề và 40 lô đất ở liền kề, 06 lô đất ở biệt thự được xây thô, hoàn thiện mặt ngoài (Có 174 lô đất ở liền kề thuộc Dự án đã được phép chuyển quyền sử dụng đất cho người dân tự xây dựng nhà ở sau khi đã hoàn thành hạ tầng kỹ thuật – đợt 1 theo Quyết định số 1119/QĐ-UBND ngày 22/01/2024 của UBND tỉnh và đợt 2 theo Công văn số 2237/SXD-QHKT&PTĐT ngày 11/9/2024 của Sở Xây dựng Sơn La).
Bản đồ vị trí 02 lô đất ở đã có hạ tầng kỹ thuật thuộc dự án Khu đô thị bản Buổn tỉnh Sơn La đợt 3:

(Hình ảnh kèm theo thông báo 02 lô đất ở đã có hạ tầng kỹ thuật thuộc dự án Khu đô thị bản Buổn, bản Mé, phường Chiềng Cơi, thành phố Sơn La, tỉnh Sơn La (nay thuộc phường Chiềng Cơi, tỉnh Sơn La) đủ điều kiện được chuyển nhượng cho cá nhân tự xây dựng nhà ở (đợt 3)).

Bản đồ vị trí 02 lô đất ở đã có hạ tầng kỹ thuật thuộc dự án Khu đô thị bản Buổn tỉnh Sơn La (đợt 3) (Hình từ Internet)
Yêu cầu Chủ đầu tư dự án tuân thủ các nội dung nào theo Công văn 4132?
Tại Công văn 4132/SXD-QHKT&PTĐT năm 2025 có nêu yêu cầu chủ đầu tư như sau:
(1) Trước khi ký kết hợp đồng chuyển nhượng quyền sử dụng đất đã có hạ tầng kỹ thuật cho cá nhân tự xây dựng nhà ở phải công khai đầy đủ, trung thực và chính xác các thông tin theo quy định tại Điều 6 Luật Kinh doanh bất động sản 2023 trên hệ thống thông tin về nhà ở và thị trường bất động sản theo quy định của pháp luật về kinh doanh bất động sản và trên trang thông tin điện tử của doanh nghiệp.
(2) Thực hiện các quyền và nghĩa vụ của bên chuyển nhượng quyền sử dụng đất đã có hạ tầng kỹ thuật để cá nhân tự xây dựng nhà ở theo quy định tại khoản 1 Điều 35 và Điều 33 Luật Kinh doanh bất động sản 2023. Trong đó lưu ý một số nội dung về bồi thường giải tỏa (tại điểm h khoản 1 Điều 30); bảo đảm các khu vực dịch vụ thiết yếu, phục vụ nhu cầu sinh hoạt của người dân như y tế, giáo dục, văn hóa, thể thao và tạo điều kiện cho bên nhận chuyển nhượng thực hiện việc xây dựng nhà ở theo quy hoạch, thiết kế được phê duyệt và tuân thủ quy định của pháp luật, giấy phép xây dựng (tại khoản 2 Điều 33).
(3) Giám sát chặt chẽ việc xây dựng nhà ở trong dự án đảm bảo tuân thủ quy hoạch, thiết kế, kiến trúc, cảnh quan, giấy phép xây dựng và hợp đồng chuyển nhượng quyền sử dụng đất đã có hạ tầng kỹ thuật trong dự án bất động sản để kịp thời phát hiện, ngăn chặn các hành vi vi phạm quy định pháp luật về xây dựng, không để xảy ra khiếu nại của các chủ sở hữu, người sử dụng nhà ở riêng lẻ theo lô, thửa trong dự án.
(4) Khi thực hiện ký kết hợp đồng chuyển nhượng quyền sử dụng đất cho người đủ điều kiện tự xây dựng nhà ở trong dự án bất động sản, trước khi khởi công xây dựng nhà ở phải có giấy phép xây dựng và thông báo đến UBND cấp xã nơi có đất để phối hợp giám sát.
(5) Trong trường hợp Chủ đầu tư vi phạm các quy định về chuyển nhượng quyền sử dụng đất đã có hạ tầng kỹ thuật cho cá nhân tự xây dựng nhà ở, Chủ đầu tư hoàn toàn chịu trách nhiệm trước pháp luật về các vi phạm (nếu có).
Điều kiện chuyển nhượng quyền sử dụng đất đã có hạ tầng kỹ thuật trong dự án bất động sản là gì?
Căn cứ Điều 31 Luật Kinh doanh bất động sản 2023 về điều kiện đối với đất đã có hạ tầng kỹ thuật trong dự án bất động sản được chuyển nhượng quyền sử dụng đất cho cá nhân tự xây dựng nhà ở quy định như sau:
[1] Phải đáp ứng yêu cầu theo quy định về yêu cầu trong kinh doanh quyền sử dụng đất đã có hạ tầng kỹ thuật trong dự án bất động sản. Theo đó, dự án bất động sản phải phù hợp với quy hoạch, kế hoạch sử dụng đất, quy hoạch được phê duyệt theo quy định của pháp luật về xây dựng, pháp luật về quy hoạch đô thị.
[2] Phải có Giấy chứng nhận quyền sử dụng đất và đất đang trong thời hạn sử dụng theo quy định của pháp luật đất đai. Quyền sử dụng phần đất chuyển nhượng phải thuộc diện tích đất trong dự án đã được cấp Giấy chứng nhận quyền sử dụng đất theo đúng quy định pháp luật.
[3] Quyền sử dụng đất không thuộc trường hợp đang có tranh chấp do cơ quan có thẩm quyền thông báo, thụ lý và giải quyết. Nếu có tranh chấp, thì phải là tranh chấp đã được giải quyết bằng bản án, quyết định hoặc phán quyết của cơ quan có thẩm quyền và đã có hiệu lực pháp luật.
[4] Quyền sử dụng đất không bị kê biên để bảo đảm thi hành án.
[5] Quyền sử dụng đất không thuộc trường hợp luật cấm giao dịch, và không đang trong thời gian bị đình chỉ hoặc tạm đình chỉ giao dịch theo quy định pháp luật.
[6] Đất không thuộc các khu vực phường, quận, thành phố của đô thị loại đặc biệt, loại I, loại II và loại III và không thuộc trường hợp phải đấu giá quyền sử dụng đất để đầu tư dự án xây dựng nhà ở theo quy định của Luật Đất đai.
[7] Trước khi chuyển nhượng quyền sử dụng đất trong dự án bất động sản đã có hạ tầng kỹ thuật, chủ đầu tư phải thông báo bằng văn bản cho cơ quan quản lý nhà nước về kinh doanh bất động sản cấp tỉnh về việc quyền sử dụng đất đủ điều kiện chuyển nhượng.
Trong thời hạn 15 ngày kể từ khi nhận được thông báo của chủ đầu tư dự án, cơ quan quản lý nhà nước về kinh doanh bất động sản cấp tỉnh có trách nhiệm kiểm tra điều kiện của quyền sử dụng đất quyền sử dụng đất đưa vào kinh doanh. Sau đó, cơ quan này phải trả lời bằng văn bản cho chủ đầu tư về việc quyền sử dụng đất đã có hạ tầng kỹ thuật đủ điều kiện để chuyển nhượng cho cá nhân tự xây dựng nhà ở. Nếu quyền sử dụng đất không đủ điều kiện chuyển nhượng, cơ quan phải có văn bản trả lời và nêu rõ lý do.
[8] Thông tin về quyền sử dụng đất đã có hạ tầng kỹ thuật trong dự án bất động sản phải được công khai trước khi đưa vào kinh doanh. Theo đó, doanh nghiệp kinh doanh bất động sản phải công khai đầy đủ, trung thực, chính xác thông tin về nhà ở và thị trường bất động sản trên hệ thống thông tin quy định của Luật, cũng như trên trang thông tin điện tử của doanh nghiệp kinh doanh bất động sản.
