Bản đồ Quy hoạch thiết kế Khu đô thị mới Lương Ninh tỷ lệ 1/500 chi tiết nhất
Mua bán nhà đất tại Quảng Bình
Nội dung chính
Bản đồ Quy hoạch thiết kế Khu đô thị mới Lương Ninh tỷ lệ 1/500 chi tiết nhất
Ngày 27 tháng 6 năm 2025, Ủy ban nhân dân tỉnh Quảng Bình ký ban hành Quyết định 2346/QÐ-UBND năm 2025 về việc phê duyệt Quy hoạch chi tiết Khu đô thị mới Lương Ninh, huyện Quảng Ninh, tỷ lệ 1/500.
Căn cứ Quyết định 2346/QÐ-UBND năm 2025 của Ủy ban nhân dân tỉnh Quảng Bình quy định như sau:
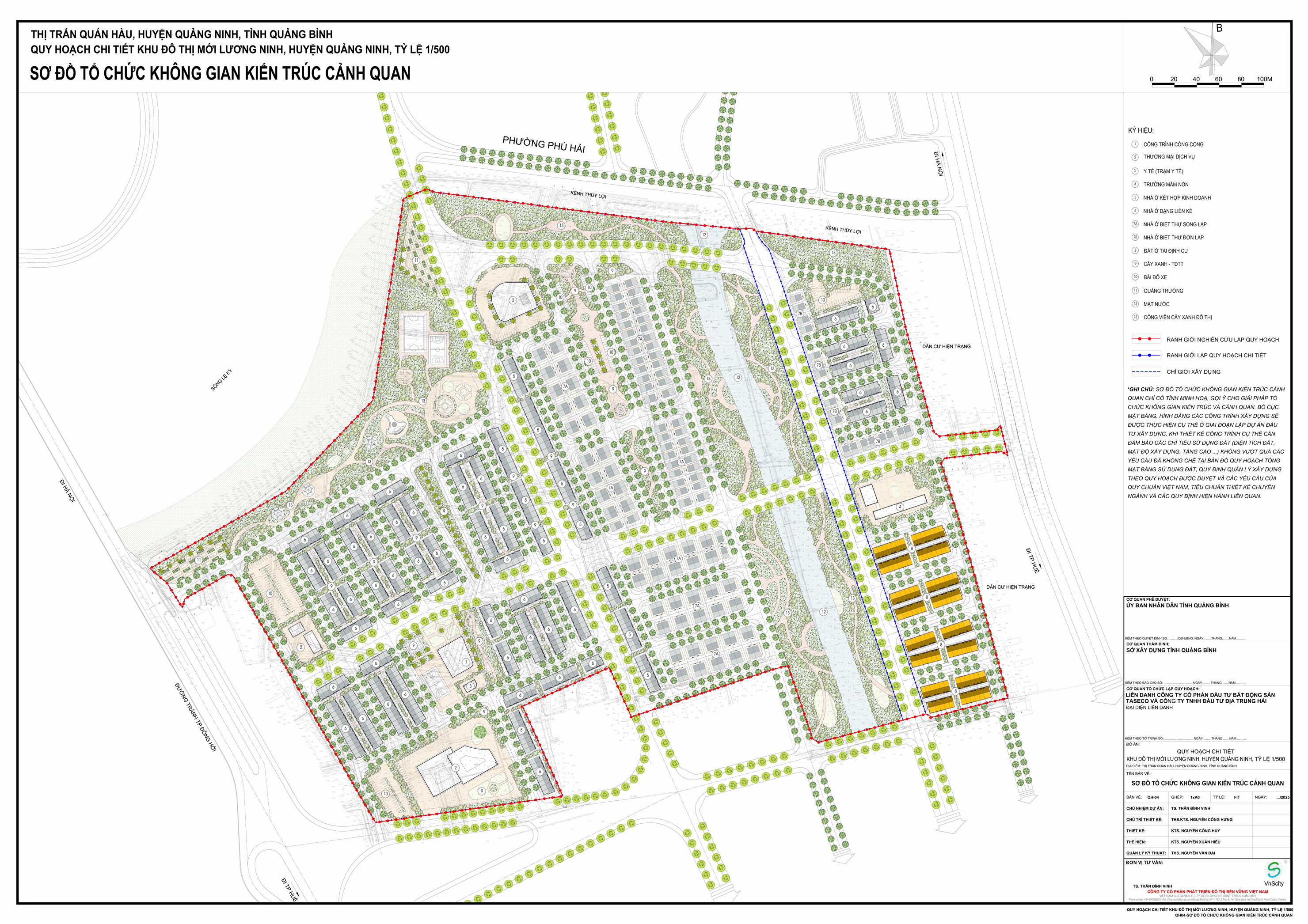
[1] Bản đồ Quy hoạch thiết kế Khu đô thị mới Lương Ninh tỷ lệ 1/500:

[2] Nội dung Quy hoạch thiết kế Khu đô thị mới Lương Ninh
Nguyên tắc của thiết kế đô thị: Tuân thủ mật độ xây dựng, khoảng lùi xây dựng, chiều cao công trình và hệ số sử dụng đất theo quy hoạch được duyệt. Nội dung chính của công tác thiết kế đô thị:
- Định hướng kiến trúc công trình hai bên các tuyến đường cảnh quan chính khu vực, các tuyến đường nội khu; tổ chức không gian các khu vực công cộng, xác định các công trình điểm nhấn, tổ chức các khu công viên, cây xanh, tiểu cảnh, các biểu tượng kiến trúc và bố trí các tiện ích, hạ tầng đô thị phù hợp.
- Về tầng cao, cốt nền, chiều cao tầng:
+ Công trình công cộng, thương mại dịch vụ: Định hướng kiến trúc công trình với tầng cao tối đa 5 tầng; cốt nền từ 0,3m đến 0,75m; chiều cao tầng 1 khoảng 3,9m đến 6m; các tầng trên cao khoảng 3,3m đến 5m.
+ Công trình nhà ở dạng biệt thự: Công trình với chiều cao tối đa 3 tầng; cốt nền từ 0,45m đến 0,75m; chiều cao tầng 1 khoảng 3,9m đến 4,5m; các tầng trên cao tối đa 3,9m.
+ Công trình nhà ở dạng liền kề: Công trình với chiều cao tối đa 4 tầng; cốt nền khoảng 0,45m; chiều cao tầng 1 từ 3,6m đến 4,2m; các tầng trên tối đa 3,9m.
- Vị trí xây dựng, khoảng lùi, định hướng hình thức kiến trúc công trình và các nội dung khác được quy định tại bản đồ thiết kế đô thị của đồ án quy hoạch.
Trên là thông tin bản đồ Quy hoạch thiết kế Khu đô thị mới Lương Ninh tỷ lệ 1/500 chi tiết nhất.
>> Xem chi tiết:
Quyết định 2346/QÐ-UBND năm 2025 của Ủy ban nhân dân tỉnh Quảng Bình |

Bản đồ Quy hoạch thiết kế Khu đô thị mới Lương Ninh tỷ lệ 1/500 chi tiết nhất (Hình từ Internet)
Quy hoạch thiết kế Khu đô thị mới Lương Ninh theo từng cấp độ quy hoạch quy định ra sao?
Căn cứ khoản 2 Điều 27 Luật Quy hoạch đô thị và nông thôn 2024 quy định như sau:
- Nội dung thiết kế đô thị trong quy hoạch chung đô thị gồm việc xác định các vùng kiến trúc, cảnh quan trong đô thị; đề xuất tổ chức không gian trong các khu trung tâm, khu vực cửa ngõ đô thị, trục không gian chính, quảng trường lớn, công viên, cây xanh, mặt nước và điểm nhấn trong đô thị;
- Nội dung thiết kế đô thị trong quy hoạch phân khu đô thị gồm việc xác định chỉ tiêu khống chế về khoảng lùi, cảnh quan đô thị dọc các trục đường chính, khu trung tâm; các khu vực không gian mở, các công trình điểm nhấn và từng ô phố cho khu vực thiết kế, công viên, cây xanh, mặt nước;
- Nội dung thiết kế đô thị trong quy hoạch chi tiết đô thị gồm việc xác định các công trình điểm nhấn tầng cao xây dựng công trình cho từng lô đất và cho toàn khu vực; khoảng lùi của công trình trên từng đường phố và nút giao nhau; công viên, cây xanh, mặt nước, không gian mở.
Thuyết minh đối với thiết kế đô thị riêng thuộc Khu đô thị mới Lương Ninh quy định ra sao?
Căn cứ khoản 1 Điều 20 Thông tư 16/2025/TT-BXD quy định như sau:
- Luận cứ, xác định phạm vi, quy mô diện tích lập thiết kế đô thị riêng, quy mô diện tích lập quy hoạch; phân tích, đánh giá hiện trạng về điều kiện tự nhiên, dân số, sử dụng đất, kiến trúc cảnh quan và hạ tầng kỹ thuật; nêu hiện trạng các dự án đầu tư phát triển đang được triển khai thực hiện. Xác định các vấn đề cơ bản cần giải quyết;
- Xác định mật độ xây dựng, tầng cao, khoảng lùi công trình trên ô phố; khống chế chiều cao công trình tối đa, tối thiểu đối với ô phố, lô phố; đề xuất nội dung và phương án thiết kế khoảng lùi công trình không được phá vỡ cấu trúc truyền thống khu vực, đáp ứng tiện ích công trình và phù hợp với cảnh quan chung; quy định cụ thể giới hạn chiều cao tầng một (hoặc tầng trệt) trở xuống, kích thước và cốt cao độ của các ban công, lô gia, mái;
- Định hình về kiến trúc: Công trình điểm nhấn, kiến trúc chủ đạo, bố cục và phân bổ các công trình theo chức năng, hình thức kiến trúc của từng thể loại công trình; hình thức kiến trúc, giải pháp tổ chức các không gian lõi bên trong ô phố, lô phố: các không gian công cộng, giao thông nội bộ, không gian đi bộ, giải trí, thể dục thể thao, cây xanh, mặt nước; giải pháp thiết kế phải kế thừa, bảo đảm hài hòa hình thức kiến trúc đặc trưng với kiến trúc mới, hiện đại; đề xuất thiết kế kiến trúc nhỏ mang tính biểu tượng, điêu khắc và trang trí gắn kết với ngôn ngữ hình khối chung của khu vực. Đối với các biển quảng cáo cần đề xuất kích cỡ, màu sắc, tỷ lệ phù hợp; sử dụng màu sắc, vật liệu cho công trình kiến trúc phải phù hợp với truyền thống và tập quán khu vực, hài hòa với cảnh quan tự nhiên chung đô thị;
- ối với hệ thống cây xanh và cảnh quan: Giải pháp thiết kế cây xanh kết hợp với mặt nước, cảnh quan tự nhiên khu vực. Lựa chọn chủng loại cây xanh sẵn có tại địa phương, có kích cỡ, màu sắc phù hợp phương án thiết kế;
- Giải pháp bảo tồn, tôn tạo, khoanh vùng bảo vệ đối với các công trình di tích văn hóa lịch sử theo Luật di sản; quy định về quản lý xây dựng các công trình xung quanh;
- Về nội dung thiết kế hạ tầng kỹ thuật: Giao thông phải xác định mặt cắt lòng đường, vỉa hè, biển báo giao thông; thiết kế sơ bộ hình thức, màu sắc, vật liệu và chỉ định phương tiện giao thông cho các tuyến giao thông nội bộ; đề xuất thiết kế sơ bộ các hệ thống trang thiết bị hạ tầng đồng bộ, các công trình tiện ích đường phố và chiếu sáng đô thị.
