Vị trí xây dựng nhà xưởng cho thuê sản xuất ngành phụ trợ ô tô điện của CTCP đầu tư KCN Vinhomes Hà Tĩnh ở đâu?
Mua bán nhà đất tại Hà Tĩnh
Nội dung chính
Vị trí xây dựng nhà xưởng cho thuê sản xuất ngành phụ trợ ô tô điện của CTCP đầu tư KCN Vinhomes Hà Tĩnh ở đâu?
Theo 1.1 Chương 1 Báo cáo đánh giá tác động môi trường dự án Đầu tư xây dựng nhà xưởng cho thuê sản xuất ngành phụ trợ ô tô điện (trang 32) có nêu:
Tên dự án: Đầu tư xây dựng nhà xưởng cho thuê sản xuất ngành phụ trợ ô tô điện.
Địa điểm thực hiện: Lô đất ký hiệu CN4-1, CN4-2 thuộc Đồ án Quy hoạch phân khu xây dựng Khu công nghiệp trung tâm lô CN4, CN5, Khu kinh tế Vũng Áng, phường Vũng Áng, tỉnh Hà Tĩnh.
Dự án “Đầu tư xây dựng nhà xưởng cho thuê sản xuất ngành phụ trợ ô tô điện” có tổng diện tích sử dụng đất khoảng 1.322.134,8 m² tại Lô đất ký hiệu CN4-1, CN4-2 thuộc Đồ án Quy hoạch phân khu xây dựng Khu công nghiệp trung tâm lô CN4, CN5, Khu kinh tế Vũng Áng, phường Vũng Áng, tỉnh Hà Tĩnh (sau đây gọi là Dự án) do Công ty Cổ phần đầu tư Khu công nghiệp VINHOMES Hà Tĩnh làm chủ đầu tư (sau đây gọi tắt là Chủ đầu tư) theo Quyết định số 152/QĐ-KKT ngày 20/09/2025 của Ban quản lý Khu kinh tế tỉnh Hà Tĩnh về việc chấp thuận chủ trương đầu tư đồng thời chấp thuận nhà đầu tư.
Tổng mức đầu tư: 21.401.000.000.000 đồng (hai mươi mốt nghìn bốn trăm lẻ một tỷ đồng).
Loại hình dự án: Đầu tư xây dựng mới.
Tiến độ thực hiện dự án:
Hoàn thành phần xây dựng hạ tầng, nhà xưởng và các công trình phụ trợ để cho thuê, đưa vào sử dụng dự kiến từ tháng 6/2027.
Thời gian hoạt động: 70 năm.
Phạm vi, ranh giới của dự án được xác định cụ thể theo các phía tiếp giáp, bao gồm:
Phía Bắc: Giáp quy hoạch đất công nghiệp của Lô CNS-1, 2 và 3;
Phía Nam: Giáp đường giao thông trong quy hoạch;
Phía Đông: Giáp đường giao thông trong quy hoạch;
Phía Tây: Giáp đường giao thông trong quy hoạch.
Ranh giới chi tiết của dự án được giới hạn bởi các điểm mốc có tọa độ khép góc theo VN2000 (kinh tuyến trục 105°30’; múi chiếu 3°) như sau:

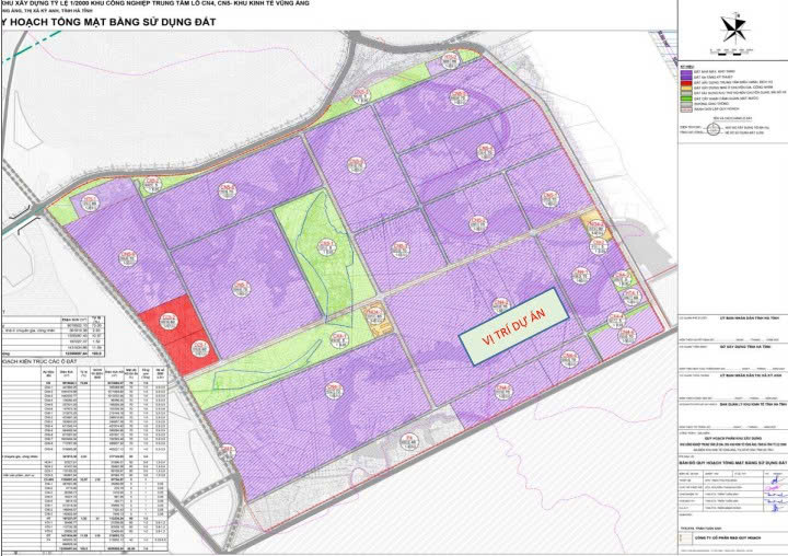
Hình 1.1. Sơ đồ vị trí dự án trong trong Quy hoạch phân khu xây dựng Khu công nghiệp trung tâm lô CN4, CN5 Khu kinh tế Vũng Áng trong Báo cáo đánh giá tác động môi trường dự án Đầu tư xây dựng nhà xưởng cho thuê sản xuất ngành phụ trợ ô tô điện

Hình 1.2. Hình ảnh vệ tinh mô tả vị trí dự án trong Báo cáo đánh giá tác động môi trường dự án Đầu tư xây dựng nhà xưởng cho thuê sản xuất ngành phụ trợ ô tô điện

Vị trí xây dựng nhà xưởng cho thuê sản xuất ngành phụ trợ ô tô điện của CTCP đầu tư KCN Vinhomes Hà Tĩnh ở đâu? (Hình từ Internet)
Nhà xưởng là gì?
Hiện nay, trong hệ thống pháp luật chưa có định nghĩa chính thức về nhà xưởng. Tuy nhiên, có thể hiểu đơn giản, nhà xưởng là công trình xây dựng được thiết kế và sử dụng cho các hoạt động sản xuất, lắp ráp, gia công hoặc lưu trữ hàng hóa – nguyên vật liệu trong lĩnh vực công nghiệp và thương mại.
Nhà xưởng thường là nơi tập trung nhân lực, máy móc, thiết bị và nguyên liệu, phục vụ quá trình sản xuất theo dây chuyền. Đồng thời, nhà xưởng cũng đóng vai trò như kho bảo quản, trung chuyển và phân phối hàng hóa, đảm bảo chuỗi cung ứng trong ngành công nghiệp diễn ra thông suốt.
Phân loại nhà xưởng phổ biến
Theo ngành nghề
Nhà xưởng cơ khí, chế tạo
Nhà xưởng dệt may, thực phẩm
Nhà xưởng điện tử, lắp ráp
Theo kết cấu
Nhà xưởng khung thép tiền chế
Nhà xưởng bê tông cốt thép
Nhà xưởng kết hợp khung thép và bê tông
Theo quy mô
Nhà xưởng nhỏ: phù hợp sản xuất hộ gia đình, xưởng nhỏ lẻ
Nhà xưởng lớn: phục vụ doanh nghiệp, tập đoàn quy mô công nghiệp
Ngoài ra, còn có nhiều loại hình nhà xưởng chuyên biệt khác, tùy theo mục đích sử dụng và yêu cầu công nghệ của từng ngành nghề.
Lưu ý: Thông tin chỉ mang tính tham khảo.
Nhà đầu tư thực hiện dự án đầu tư xây dựng và kinh doanh kết cấu hạ tầng khu công nghiệp có được xây dựng nhà xưởng không?
Căn cứ theo điểm a khoản 3 Điều 61 Nghị định 31/2021/NĐ-CP quy định như sau:
Điều 61. Đầu tư xây dựng và kinh doanh kết cấu hạ tầng khu công nghiệp, khu chế xuất, khu công nghệ cao và khu kinh tế
1. Hoạt động đầu tư xây dựng và kinh doanh kết cấu hạ tầng khu công nghiệp, khu chế xuất phải phù hợp với quy hoạch xây dựng khu công nghiệp, khu chế xuất đã được cấp có thẩm quyền phê duyệt.
2. Đối với địa bàn có điều kiện kinh tế - xã hội khó khăn, căn cứ vào điều kiện cụ thể của địa phương, Ủy ban nhân dân cấp tỉnh trình Thủ tướng Chính phủ quyết định thành lập hoặc giao cho đơn vị sự nghiệp có thu làm nhà đầu tư dự án đầu tư xây dựng và kinh doanh kết cấu hạ tầng khu công nghiệp, khu chế xuất.
3. Nhà đầu tư thực hiện dự án đầu tư xây dựng và kinh doanh kết cấu hạ tầng khu công nghiệp, khu chế xuất, khu công nghệ cao và khu chức năng trong khu kinh tế được thực hiện các hoạt động sau:
a) Xây dựng nhà xưởng, văn phòng, kho bãi để bán hoặc cho thuê;
b) Định giá cho thuê đất, giá cho thuê lại đất đã xây dựng kết cấu hạ tầng kỹ thuật; các loại phí sử dụng hạ tầng; giá cho thuê, giá bán nhà xưởng, văn phòng, kho bãi và các loại phí dịch vụ khác theo quy định của pháp luật và đăng ký với Ban quản lý khu công nghiệp, khu chế xuất, khu công nghệ cao, khu kinh tế về khung giá và các loại phí sử dụng hạ tầng. Việc đăng ký khung giá và các loại phí sử dụng hạ tầng thực hiện định kỳ 06 tháng hoặc trong trường hợp có sự điều chỉnh khác so với khung giá và các loại phí sử dụng hạ tầng đã đăng ký;
c) Thu các loại phí sử dụng hạ tầng;
d) Chuyển nhượng quyền sử dụng đất, cho thuê đất và cho thuê lại đất đã xây dựng kết cấu hạ tầng kỹ thuật trong khu công nghiệp, khu chế xuất, khu công nghệ cao và khu chức năng trong khu kinh tế cho nhà đầu tư khác theo quy định của pháp luật về đất đai và pháp luật về kinh doanh bất động sản;
đ) Các hoạt động khác theo quy định của Luật Đầu tư, Nghị định này, quy định của Chính phủ về khu công nghiệp, khu chế xuất, khu công nghệ cao, khu kinh tế và pháp luật có liên quan.
Theo đó, đối với nhà đầu tư thực hiện dự án đầu tư xây dựng và kinh doanh kết cấu hạ tầng khu công nghiệp trong khu kinh tế sẽ được thực hiện việc xây dựng nhà xưởng, văn phòng, kho bãi để bán hoặc cho thuê.
