Quy định kỹ thuật
Quy định kỹ thuật về báo hiệu chuyển hướng luồng đường thủy nội địa
12/11/2024 15:50
Quy định kỹ thuật về báo hiệu chuyển hướng luồng đường thủy nội địa
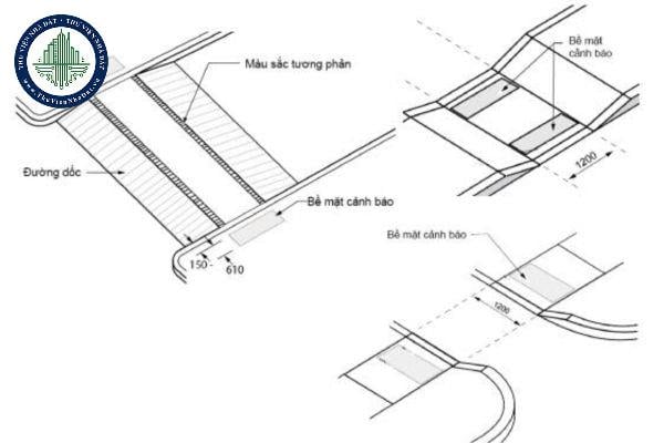
Quy định kỹ thuật về lối thoát nạn dành cho người khuyết tật
11/11/2024 13:55
Lối thoát nạn dành cho người khuyết tật được quy định như thế nào? Tôi có một thắc mắc rất mong nhận được câu trả lời. Cho tôi hỏi lối thoát nạn dành cho người khuyết tật được quy định như thế nào? Vấn đề này được quy định ở đâu?
Quy định kỹ thuật về khu nước của cảng
09/11/2024 13:47
Quy định kỹ thuật về khu nước của cảng được quy định thế nào? Nhờ tư vấn.
Quy định kỹ thuật về phòng khám dành cho người khuyết tật được quy định như thế nào?
08/11/2024 11:40
Cho tôi hỏi phòng khám dành cho người khuyết tật được quy định như thế nào? Vấn đề này được quy định ở đâu?
Quy định kỹ thuật về bố cục tem bưu chính?
05/11/2024 11:38
Quy định kỹ thuật về bố cục tem bưu chính? Có văn bản nào quy định về vấn đề này không?
