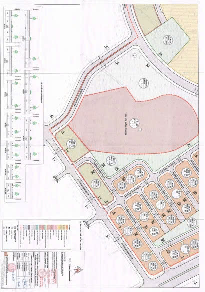
Bản đồ quy hoạch khu đô thị mới Linh Sơn Huống Thượng (khu số 1)?
Mua bán Đất tại Thái Nguyên
Nội dung chính
Bản đồ quy hoạch khu đô thị mới Linh Sơn Huống Thượng (khu số 1)?
Khu đô thị mới Linh Sơn Huống Thượng (Khu số 1) được quy hoạch tại xã Huống Thượng, TP. Thái Nguyên với tổng diện tích nghiên cứu 74,55 ha, trong đó diện tích dự án 71,84 ha.
Ngày 26 tháng 12năm 2024, UBND tỉnh Thái Nguyên đã ban hành Quyết định 13996/QÐ-UBND năm 2024 về việc phê duyệt đồ án Quy hoạch chi tiết Khu đô thị mới Linh Sơn - Huống Thượng (Khu số 1).
Tổng mức đầu tư dự kiến lên đến 4.509 tỷ đồng. Khu đô thị khi hoàn thành được kỳ vọng sẽ đáp ứng nhu cầu sinh sống cho khoảng 4.100 cư dân. Kế hoạch thực hiện dự án dự kiến sẽ kéo dài đến hết quý IV năm 2028.
Chủ đầu tư khu đô thị mới Linh Sơn Huống Thượng (khu số 1) là CTCP Đầu tư và Dịch vụ T&T và cũng là nhà đầu tư duy nhất nộp hồ sơ đăng ký thực hiện dự án khu số 1.
Khu đô thị mới Linh Sơn Huống Thượng (Khu số 1) định hướng xây dựng một khu đô thị hiện đại, đồng bộ hạ tầng kỹ thuật - xã hội, cung cấp đầy đủ dịch vụ tiện ích, nâng cao chất lượng sống cho cư dân trong và ngoài khu vực.
Bản đồ quy hoạch khu đô thị mới Linh Sơn Huống Thượng (khu số 1)
Bản đồ quy hoạch khu đô thị mới Linh Sơn Huống Thượng (khu số 1) xem chi tiết: TẠI ĐÂY

Bản đồ quy hoạch khu đô thị mới Linh Sơn Huống Thượng (khu số 1)? (Hình từ internet)
Giải pháp tổ chức không gian, kiến trúc khu đô thị mới Linh Sơn Huống Thượng (khu số 1) ra sao?
Theo Quyết định 13996/QÐ-UBND năm 2024 thì giải pháp tổ chức không gian, kiến trúc khu đô thị mới Linh Sơn Huống Thượng (khu số 1) được xác định như sau:
- Hướng tiếp cận khu đô thị:
+ Phía Đông từ tuyến đường Huống Thượng Chùa Hang
+ Phía Tây từ tuyến đường được xác định theo quy hoạch phân khu lộ giới 37m
+ Phía Nam từ tuyến đường quy hoạch lộ giới 20,5m thuộc dự án Khu đô thị số 1 xã Huống Thượng và tuyến đường được xác định theo quy hoạch phân khu lộ giới 27m đi qua Trường tiểu học Huống Thượng
+ Phía Bắc từ tuyến đường được xác định theo quy hoạch phân khu lộ giới 20,5m đi qua hồ Huống Trung.
Từ các hướng tiếp cận trên bố trí các tuyến đường giao thông để phân chia thành các lô đất có các chức năng khác nhau theo dạng ô bàn cờ trên cơ sở tuân thủ quy hoạch cấp trên.
- Tại trung tâm khu vực dọc theo hướng từ Bắc Nam, từ Tây sang Đông quy hoạch hệ thống cây xanh mặt nước kết hợp sân chơi và sân tập luyện, tạo các khoảng không gian mở và đóng cùng với công trình thương mại cao tâng phía Tây Bắc là khu vực điểm nhấn chính của khu đô thị.
- Các công trình nhà ở (nhà ở biệt thự, nhà ở liền kề, nhà ở chung cư, nhà ở xã hội) được phân bố đều khắp và bố trí hướng về khu vực trung tâm của khu quy hoạch. Các công trình hạ tầng xã hội (văn hóa, y tế, giáo dục, thương mại), hạ tầng kỹ thuật được bố trí phù hợp về số lượng, quy mô, vị trí, đảm bảo bán kính phục vụ.
Trên đây là trả lời cho câu hỏi "Giải pháp tổ chức không gian, kiến trúc khu đô thị mới Linh Sơn Huống Thượng (khu số 1) ra sao?"
Trình tự điều chỉnh quy hoạch đô thị thế nào?
Căn cứ theo quy định tại Điều 47 Luật Quy hoạch đô thị và nông thôn 2024 có quy định về trình tự điều chỉnh quy hoạch đô thị và nông thôn như sau:
(1) Trình tự điều chỉnh tổng thể quy hoạch đô thị và nông thôn được quy định như sau:
- Cơ quan, tổ chức có trách nhiệm tổ chức lập quy hoạch đô thị và nông thôn quy định tại Điều 17 của Luật này báo cáo cơ quan có thẩm quyền phê duyệt quy hoạch đô thị và nông thôn để xem xét chấp thuận chủ trương điều chỉnh tổng thể quy hoạch đô thị và nông thôn trên cơ sở báo cáo kết quả rà soát quy hoạch;
- Sau khi được cơ quan có thẩm quyền phê duyệt quy hoạch đô thị và nông thôn chấp thuận về chủ trương, việc tổ chức lập, thẩm định, phê duyệt điều chỉnh tổng thể quy hoạch và công bố được thực hiện theo trình tự lập, thẩm định, phê duyệt, công bố quy hoạch theo quy định của Luật này.
(2) Trình tự điều chỉnh cục bộ quy hoạch đô thị và nông thôn được quy định như sau:
- Cơ quan, tổ chức có trách nhiệm tổ chức lập quy hoạch đô thị và nông thôn quy định tại Điều 17 của Luật này có trách nhiệm lập hồ sơ điều chỉnh cục bộ quy hoạch theo quy định của Bộ trưởng Bộ Xây dựng; tổ chức lấy ý kiến về nội dung và kế hoạch điều chỉnh cục bộ quy hoạch đối với cơ quan quản lý nhà nước có liên quan, cộng đồng dân cư trong khu vực dự kiến điều chỉnh quy hoạch và các khu vực xung quanh chịu ảnh hưởng trực tiếp theo quy định tại Điều 37 Luật Quy hoạch đô thị và nông thôn 2024;
- Cơ quan thẩm định quy định tại Điều 38 Luật Quy hoạch đô thị và nông thôn 2024 thực hiện thẩm định về căn cứ lập quy hoạch, điều kiện điều chỉnh và nội dung điều chỉnh cục bộ quy hoạch;
- Cơ quan, tổ chức có thẩm quyền phê duyệt quy hoạch đô thị và nông thôn quy định tại Điều 41 và khoản 2, khoản 3 Điều 48 Luật Quy hoạch đô thị và nông thôn 2024 quyết định phê duyệt điều chỉnh cục bộ quy hoạch. Quyết định phê duyệt điều chỉnh cục bộ quy hoạch đô thị và nông thôn phải thể hiện rõ các nội dung điều chỉnh và kèm theo hồ sơ điều chỉnh cục bộ quy hoạch;
- Cơ quan, tổ chức có trách nhiệm tổ chức lập quy hoạch đô thị và nông thôn có trách nhiệm cập nhật và thể hiện trong hồ sơ quy hoạch những nội dung đã điều chỉnh. Nội dung điều chỉnh cục bộ quy hoạch đô thị và nông thôn phải được công bố theo quy định tại Điều 50 Luật Quy hoạch đô thị và nông thôn 2024.
(3) Bộ trưởng Bộ Xây dựng quy định chi tiết hồ sơ rà soát, điều chỉnh quy hoạch đô thị và nông thôn.
