08:27 - 28/10/2025

Mặt bằng tổng thể dự án Zeitgeist Nhà Bè chi tiết

Mặt bằng tổng thể dự án Zeitgeist Nhà Bè chi tiết. Giới thiệu tổng quan dự án Zeitgeist Nhà Bè

Mua bán Căn hộ chung cư tại Hồ Chí Minh

Xem thêm Mua bán Căn hộ chung cư tại Hồ Chí Minh

Nội dung chính

    Mặt bằng tổng thể dự án Zeitgeist Nhà Bè chi tiết

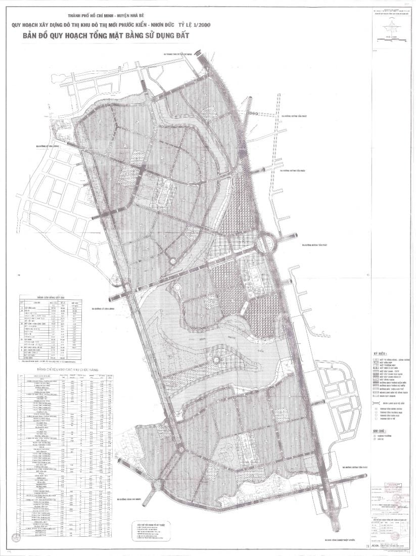
    Dự án Zeitgeist Nhà Bè có tổng diện tích quy hoạch khoảng 349,36 ha (gần 350 ha) tại mặt tiền đường Nguyễn Hữu Thọ, xã Phước Kiển và xã Nhơn Đức, huyện Nhà Bè (Cũ), TP.HCM

    Không gian dự án được tổ chức thành nhiều phân khu chức năng rõ ràng, với các tỷ lệ diện tích được phân bổ hợp lý giữa khu nhà ở, tiện ích, cây xanh & mặt nước, giao thông đô thị:

    Phân khu A (Linear City): diện tích khoảng 115,155 ha, phát triển theo mô hình đô thị tuyến tính.

    Phân khu B (The Center Peninsula & Gateway City): diện tích khoảng 57,804 ha.

    Phân khu C (Park City): diện tích khoảng 76,482 ha.

    Diện tích dành cho công trình công cộng: khoảng 34,438 ha, gồm các công trình giáo dục, hành chính, thương mại, y tế.

    Diện tích đất giao thông nội khu vào khoảng 66,036 ha.

    Diện tích cây xanh & mặt nước: ví dụ cây xanh khoảng 39,46 ha và diện tích mặt nước khoảng 40 ha.

    Dưới đây là mặt bằng tổng thể dự án Zeitgeist Nhà Bè chi tiết


    Giới thiệu tổng quan dự án Zeitgeist Nhà Bè

    Dưới đây là bảng giới thiệu tổng quan dự án Zeitgeist Nhà Bè

    Thông tinChi tiết

    Tên thương mại

    Zeitgeist Nhà Bè - CS Metrocity Nhà Bè

    Chủ đầu tư

    Công ty TNHH MTV Phát triển GS Nhà Bè (Thuộc tập đoàn GS E&C, Hàn Quốc)

    Vị trí dự án

    Thuộc địa phận 2 của xã Phước Kiển – Nhơn Đức, Huyện Nhà Bè.

    Thiết kế

    Changjo Architect (Korea), Ong & Ong (Singapore)

    Thiết kế cơ sở hạ tầng

    Nagecco & Tedi South

    Tổng thầu xây dựng

    GS E&C

    Thi công móng cọc

    GS E&C

    Quản lý và vận hành

    Xi S&D, Savill

    Tổng diện tích

    349,36 ha

    Loại hình đầu tư

    Căn hộ chung cư cao cấp, Thương Mại, Dịch Vụ, Văn Phòng, Shophouse, Officetel

    Quy mô dự án

    - Khu A: khu đô thị tuyến tính Linear, với diện tích 115,155 ha

    - Khu B: bán đảo trung tâm The Center Peninsula và khu đô thị cửa ngõ Gateway City, với diện tích 57,804 ha 

    - Khu C: khu đô thị công viên Park City, với diện tích 76,482 ha

    - Khu công cộng: diện tích 34,438 ha, bao gồm các công trình giáo dục, trung tâm y tế, thương mại, hành chính…

    - Khu đất giao thông: với diện tích 66,036 ha

    - Khu cây xanh: diện tích 39,460 ha 

    - Các khu chức năng khác: diện tích 53,233 ha

    - Số lượng sản phẩm: 770 biệt thự, 16.270 căn hộ trung cấp, cao cấp và sang trọng.

    Tiện ích Gs City Nhà Bè

    Trường mầm non và Trường Tiểu học, Công viên Sunshine Park, ,Trung tâm thể dục thể thao (gym, spa, yoga…), Quảng trường, Vườn nướng BBQ, khu ẩm thực, thư viện, phòng sinh hoạt chung, đường chạy bộ, bể bơi…

    Khởi công xây dựng

    Quý III/2019

     Bàn giao

    Năm 2023 , bàn giao Phân Khu 1.1

    Pháp lý

    Sổ hồng

    Hình thức sở hữu

    Người Việt Nam: Lâu Dài

    Người Nước Ngoài: 50 năm theo luật pháp hiện hành

    >>> Tìm kiếm thông tin mua bán căn hộ Zeitgeist Nhà Bè: TẠI ĐÂY

    Mặt bằng tổng thể dự án Zeitgeist Nhà Bè chi tiết

    Mặt bằng tổng thể dự án Zeitgeist Nhà Bè chi tiết (Hình từ Internet)

    Địa chỉ dự án Zeitgeist Nhà Bè sau sáp nhập là ở đâu?

    Trước sáp nhập dự án Zeitgeist Nhà Bè tọa lạc trên tuyến đường Nguyễn Hữu Thọ, xã Phước Kiển – Nhơn Đức, huyện Nhà Bè, TP.HCM.

    Tuy nhiên, căn cứ Điều 1 Nghị quyết 1685/NQ-UBTVQH15 năm 2025 quy định như sau:

    Điều 1. Sắp xếp các đơn vị hành chính cấp xã của Thành phố Hồ Chí Minh
    Trên cơ sở Đề án số 356/ĐA-CP ngày 09 tháng 05 năm 2025 của Chính phủ về sắp xếp đơn vị hành chính cấp xã của Thành phố Hồ Chí Minh (mới) năm 2025, Ủy ban Thường vụ Quốc hội quyết định sắp xếp để thành lập các đơn vị hành chính cấp xã của Thành phố Hồ Chí Minh như sau:
    ...
    129. Sắp xếp toàn bộ diện tích tự nhiên, quy mô dân số của các xã Bình Mỹ (huyện Củ Chi), Hòa Phú và Trung An thành xã mới có tên gọi là xã Bình Mỹ.
    130. Sắp xếp toàn bộ diện tích tự nhiên, quy mô dân số của các xã Thới Tam Thôn, Nhị Bình và Đông Thạnh thành xã mới có tên gọi là xã Đông Thạnh.
    131. Sắp xếp toàn bộ diện tích tự nhiên, quy mô dân số của xã Tân Hiệp (huyện Hóc Môn), xã Tân Xuân và thị trấn Hóc Môn thành xã mới có tên gọi là xã Hóc Môn.
    132. Sắp xếp toàn bộ diện tích tự nhiên, quy mô dân số của các xã Tân Thới Nhì, Xuân Thới Đông và Xuân Thới Sơn thành xã mới có tên gọi là xã Xuân Thới Sơn.
    133. Sắp xếp toàn bộ diện tích tự nhiên, quy mô dân số của các xã Xuân Thới Thượng, Trung Chánh và Bà Điểm thành xã mới có tên gọi là xã Bà Điểm.
    134. Sắp xếp toàn bộ diện tích tự nhiên, quy mô dân số của thị trấn Nhà Bè và các xã Phú Xuân, Phước Kiển, Phước Lộc thành xã mới có tên gọi là xã Nhà Bè.
    ...

    Theo quy định trên, Xã Phước Kiển cùng với thị trấn Nhà Bè, xã Phú Xuân và xã Phước Lộc đã sáp nhập thành lập một xã có tên gọi mới là xã Nhà Bè

    Như vậy, địa chỉ mới Zeitgeist City Nhà Bè ở đường Nguyễn Hữu Thọ, xã Nhà Bè, Thành phố Hồ Chí Minh.

    1